Dla wielu właścicieli działek budynek gospodarczy to nieoceniony element, który znacząco zwiększa funkcjonalność posesji. Jednak jego budowa i użytkowanie wiążą się z szeregiem przepisów, które warto znać, aby uniknąć problemów prawnych. W tym artykule, jako Nela Piątkowska, przeprowadzę Cię przez meandry definicji, niezbędnych formalności oraz praktycznych aspektów związanych z budynkami gospodarczymi, pomagając Ci zrozumieć ich rolę i możliwości zastosowania.
Budynek gospodarczy: co musisz wiedzieć o definicji, formalnościach i zastosowaniu?
- Budynek gospodarczy nie ma wprost legalnej definicji w Prawie budowlanym, ale jest precyzyjnie opisany w Rozporządzeniu Ministra Infrastruktury jako obiekt pomocniczy.
- Kluczowe cechy to trwałe związanie z gruntem, wydzielenie przegrodami oraz posiadanie fundamentów i dachu, służący do niezawodowej pracy warsztatowej lub przechowywania.
- Budowa parterowego budynku gospodarczego do 35 m² powierzchni zabudowy zazwyczaj wymaga jedynie zgłoszenia, a nie pozwolenia na budowę.
- Standardowe odległości od granicy działki to 3 metry (bez otworów) lub 4 metry (z oknami/drzwiami), z możliwością odstępstw w określonych warunkach.
- Może służyć jako warsztat, składzik na narzędzia czy sprzęt, ale jego funkcja jest pomocnicza i nie może być trwale wykorzystywany do działalności komercyjnej bez zmiany sposobu użytkowania.
- Przekształcenie budynku gospodarczego na mieszkalny jest możliwe, ale wymaga dopełnienia formalności i dostosowania do wymogów technicznych dla budynków mieszkalnych.
Czym jest budynek gospodarczy w świetle polskiego prawa?
Zacznijmy od podstaw, bo to często budzi najwięcej pytań. Wbrew pozorom, polskie Prawo budowlane nie zawiera bezpośredniej definicji legalnej "budynku gospodarczego". To dość zaskakujące, prawda? Oznacza to, że nie znajdziesz jej wprost w ustawie, a jednak urzędy i sądy posługują się tym pojęciem na co dzień. Skąd więc czerpią wiedzę? Kluczowe jest Rozporządzenie Ministra Infrastruktury w sprawie warunków technicznych, jakim powinny odpowiadać budynki i ich usytuowanie. To właśnie tam, w § 3 pkt 8, znajdziemy precyzyjne wytyczne.
Zgodnie z Rozporządzeniem Ministra Infrastruktury, budynek gospodarczy to budynek przeznaczony do niezawodowej pracy warsztatowej oraz do przechowywania materiałów, narzędzi, sprzętu i płodów rolnych służących mieszkańcom budynku mieszkalnego, budynku zamieszkania zbiorowego, budynku rekreacji indywidualnej, a także ich otoczenia.
Kluczowe cechy, które musi spełniać obiekt, by uznać go za gospodarczy
Aby obiekt został uznany za budynek gospodarczy w świetle prawa, musi spełniać kilka fundamentalnych cech. To ważne, ponieważ od nich zależy, jak będzie traktowany w procesie budowlanym i jakie formalności będą wymagane. Z mojego doświadczenia wynika, że te aspekty są często pomijane, co prowadzi do nieporozumień.
- Trwale związany z gruntem: Oznacza to, że budynek nie jest konstrukcją tymczasową, którą można łatwo przenieść. Ma solidne fundamenty, które łączą go na stałe z ziemią.
- Wydzielony z przestrzeni za pomocą przegród budowlanych: Musi posiadać ściany, które oddzielają jego wnętrze od otoczenia. Nie mówimy tu o wiacie czy altanie z otwartymi bokami.
- Posiadający fundamenty: Jak już wspomniałam, fundamenty są kluczowe. To one świadczą o trwałym związaniu z gruntem i odróżniają budynek od lżejszych konstrukcji.
- Posiadający dach: Oczywiste, ale warte podkreślenia. Dach chroni wnętrze przed warunkami atmosferycznymi i jest integralną częścią każdego budynku.
Jaka jest jego podstawowa rola na działce? O funkcji pomocniczej słów kilka
Podstawową rolą budynku gospodarczego jest pełnienie funkcji pomocniczej w stosunku do głównego budynku na działce, najczęściej mieszkalnego. To kluczowe rozróżnienie, które wpływa na jego przeznaczenie i możliwości użytkowania. Budynek gospodarczy ma służyć mieszkańcom i ich otoczeniu, wspierając codzienne życie czy to poprzez przechowywanie narzędzi ogrodowych, roweru, czy też jako miejsce do drobnych prac warsztatowych. Nie jest to obiekt, który ma dominować nad funkcją mieszkalną, a raczej ją uzupełniać.

Formalności przy budowie budynku gospodarczego: pozwolenie czy zgłoszenie?
Zgłoszenie budowy: jakie wymiary i warunki zwalniają Cię z ubiegania się o pozwolenie?
To jest jeden z najczęściej zadawanych pytań i zarazem obszar, w którym przepisy bywają najbardziej elastyczne. Na szczęście, w wielu przypadkach budowa budynku gospodarczego jest znacznie prostsza niż budowa domu. Kiedy wystarczy zgłoszenie?
- Budynek musi być parterowy.
- Jego powierzchnia zabudowy nie może przekraczać 35 m².
- Łączna liczba takich obiektów (budynków gospodarczych, garaży, wiat) na działce nie może przekraczać dwóch na każde 500 m² powierzchni działki. To oznacza, że na działce o powierzchni 1000 m² możesz mieć cztery takie obiekty na zgłoszenie.
- W przypadku budynków gospodarczych o prostej konstrukcji, związanych z produkcją rolną, możesz budować na zgłoszenie obiekty o powierzchni zabudowy do 300 m² i rozpiętości konstrukcji nie większej niż 7 m. To duża ulga dla rolników!
Warto również wspomnieć, że od 2026 roku planowana jest dalsza liberalizacja przepisów. Może to oznaczać, że limity powierzchni dla budynków gospodarczych budowanych bez formalności lub na zgłoszenie zostaną jeszcze bardziej rozszerzone, co z pewnością ułatwi życie wielu inwestorom. Zawsze jednak sprawdzaj aktualne przepisy, zanim rozpoczniesz jakiekolwiek prace.
Kiedy pozwolenie na budowę staje się absolutną koniecznością?
Niestety, nie zawsze uda nam się uniknąć pozwolenia na budowę. Pozwolenie na budowę staje się absolutną koniecznością, gdy Twój planowany budynek gospodarczy nie spełnia żadnego z kryteriów uprawniających do budowy na zgłoszenie. Oznacza to, że jeśli budynek ma być większy niż 35 m² (lub 300 m² dla rolników), ma być piętrowy, albo jego przeznaczenie wykracza poza ramy funkcji pomocniczej, musisz przejść pełną procedurę uzyskania pozwolenia. To proces bardziej złożony i czasochłonny, wymagający przygotowania pełnego projektu budowlanego.
Jak prawidłowo wypełnić i złożyć zgłoszenie budowy? Praktyczna checklista
Prawidłowe złożenie zgłoszenia to podstawa sukcesu. Z mojego doświadczenia wiem, że błędy formalne są najczęstszą przyczyną opóźnień. Oto praktyczna checklista, która pomoże Ci przejść przez ten proces sprawnie:
- Wypełnij wniosek: Skorzystaj z formularza zgłoszenia robót budowlanych, dostępnego zazwyczaj na stronach internetowych urzędów lub bezpośrednio w starostwie/urzędzie miasta.
- Dołącz projekt zagospodarowania działki lub terenu: Powinien być wykonany przez uprawnionego projektanta. Wskaż na nim dokładną lokalizację budynku gospodarczego, odległości od granic, istniejącą zabudowę.
- Dołącz oświadczenie o prawie do dysponowania nieruchomością na cele budowlane: To dokument potwierdzający, że jesteś właścicielem działki lub masz inne prawo do jej zabudowy.
- Dołącz szkice i rysunki: Przedstawiające rzuty i przekroje budynku, jego wymiary, wysokość, konstrukcję. Nie muszą to być pełnowymiarowe projekty budowlane, ale muszą być czytelne i zawierać wszystkie kluczowe informacje.
- Złóż zgłoszenie w odpowiednim urzędzie: Zazwyczaj jest to starostwo powiatowe lub urząd miasta (w miastach na prawach powiatu).
- Poczekaj na "milczącą zgodę": Urząd ma 21 dni na wniesienie sprzeciwu. Jeśli w tym czasie nie otrzymasz żadnej informacji, oznacza to, że możesz rozpocząć budowę. Pamiętaj, że prace możesz rozpocząć dopiero po upływie tego terminu!
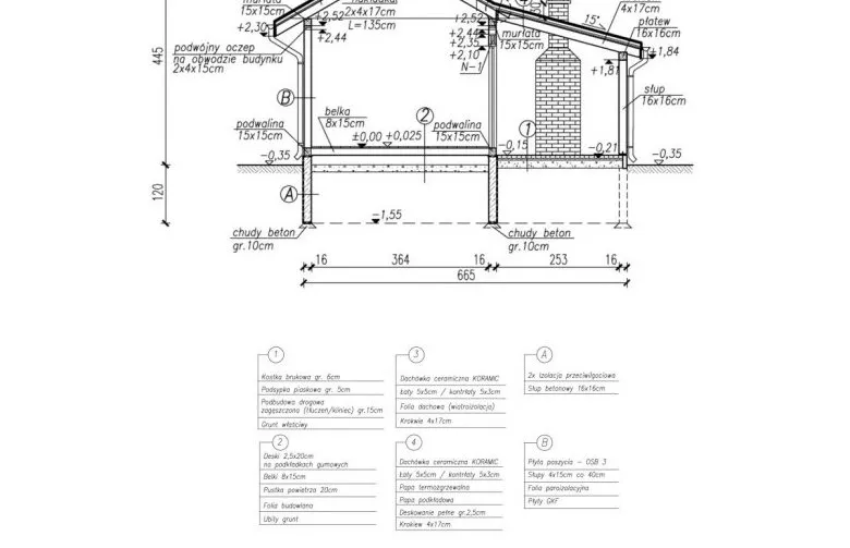
Lokalizacja budynku gospodarczego: odległości od granicy działki
Zasada 3 i 4 metrów jak interpretować przepisy dotyczące ścian z oknami i bez?
Kwestia odległości od granicy działki jest niezwykle ważna i często budzi wiele pytań. Ogólne zasady są dość proste, ale diabeł tkwi w szczegółach. Standardowo, budynek gospodarczy musi być usytuowany w odległości co najmniej 4 metrów od granicy działki, jeśli jego ściana ma okna lub drzwi. Jeśli natomiast ściana przylegająca do granicy jest bez otworów (tzw. ściana ślepa), minimalna odległość to 3 metry. Te zasady mają na celu zapewnienie odpowiedniego nasłonecznienia, prywatności oraz bezpieczeństwa przeciwpożarowego na sąsiednich nieruchomościach. Warto je zapamiętać, bo to podstawa planowania.
Budowa "w ostrej granicy" jakie warunki musisz spełnić, by było to legalne?
Czy można zbudować budynek gospodarczy bezpośrednio przy granicy działki, czyli "w ostrej granicy"? Tak, ale tylko w ściśle określonych warunkach. To rozwiązanie jest możliwe, jednak wymaga spełnienia kilku kryteriów, które mają chronić interesy sąsiadów i zapewnić ład przestrzenny. Oto one:
- Zgodność z MPZP: Przede wszystkim, budowa taka musi być zgodna z miejscowym planem zagospodarowania przestrzennego (MPZP). Jeśli plan dopuszcza taką zabudowę, masz zielone światło.
- Istnienie podobnego budynku na sąsiedniej działce: Jeśli na sąsiedniej działce już istnieje budynek z ścianą przylegającą do granicy, możesz wybudować swój budynek gospodarczy w ten sam sposób. Ważne jest, aby Twój budynek nie przekraczał długości istniejącego budynku sąsiada.
- Ograniczenia dotyczące długości i wysokości: Nawet jeśli spełniasz powyższe warunki, musisz przestrzegać ograniczeń dotyczących długości i wysokości budynku, które są zazwyczaj określone w MPZP lub przepisach ogólnych.
- Brak otworów w ścianie granicznej: Ściana budynku gospodarczego przylegająca do granicy działki musi być ścianą bez otworów okiennych i drzwiowych.
Co mówi Miejscowy Plan Zagospodarowania Przestrzennego (MPZP) o lokalizacji Twojego budynku?
Miejscowy Plan Zagospodarowania Przestrzennego (MPZP) to dokument, który ma nadrzędne znaczenie dla każdej inwestycji budowlanej na danym terenie. Zawsze podkreślam moim klientom, że to pierwszy dokument, który należy sprawdzić. Zapisy MPZP mogą bowiem modyfikować ogólne przepisy dotyczące odległości od granicy działki, a także określać inne warunki lokalizacji budynków gospodarczych, takie jak maksymalna wysokość, kąt nachylenia dachu czy nawet kolorystyka elewacji. Niezależnie od tego, co mówią ogólne przepisy, zawsze musisz dostosować się do MPZP.
Funkcje budynku gospodarczego: co wolno, a czego nie?
Przykładowe zastosowania: od warsztatu majsterkowicza po przechowalnię sprzętu sportowego
Zgodnie z definicją, budynek gospodarczy ma szerokie spektrum zastosowań, które mają wspierać mieszkańców i ich otoczenie. To właśnie jego funkcja pomocnicza jest kluczowa. Oto kilka przykładów, do czego legalnie możesz wykorzystać swój budynek gospodarczy:
- Niezawodowa praca warsztatowa: Idealne miejsce dla majsterkowicza, hobbysty, który potrzebuje przestrzeni na swoje projekty.
- Przechowywanie materiałów budowlanych: Jeśli remontujesz dom, budynek gospodarczy może służyć jako składzik na cement, pustaki czy deski.
- Przechowywanie narzędzi ogrodowych: Kosiarki, grabie, taczki wszystko znajdzie swoje miejsce.
- Przechowywanie sprzętu sportowego: Rowery, narty, kajaki bezpieczne i suche miejsce na Twoje pasje.
- Składzik na płody rolne: Jeśli masz ogród warzywny, możesz przechowywać w nim zebrane plony.
- Drewutnia: Miejsce na drewno opałowe, chronione przed deszczem.
Czego nie wolno robić w budynku gospodarczym? Ograniczenia i zakazy
Choć budynek gospodarczy oferuje wiele możliwości, istnieją też wyraźne ograniczenia i zakazy dotyczące jego użytkowania. Najważniejsze jest to, że jego funkcja jest pomocnicza. Oznacza to, że nie może być trwale wykorzystywany do celów, które są sprzeczne z jego przeznaczeniem. Przykładowo, nie możesz w nim na stałe zamieszkać, ani prowadzić w nim działalności gospodarczej bez uprzedniej zmiany sposobu użytkowania. Taka samowolna zmiana może prowadzić do poważnych konsekwencji prawnych, włącznie z wysokimi karami finansowymi czy nakazem przywrócenia poprzedniego stanu.
Budynek gospodarczy a działalność gospodarcza czy można połączyć te funkcje?
Pytanie o połączenie funkcji budynku gospodarczego z prowadzeniem działalności gospodarczej pojawia się bardzo często. Krótka odpowiedź brzmi: tak, jest to możliwe, ale wymaga dopełnienia formalności. Jeśli planujesz wykorzystać budynek gospodarczy na przykład jako mały warsztat rzemieślniczy, magazyn dla e-commerce czy biuro, musisz złożyć wniosek o zmianę sposobu użytkowania w odpowiednim urzędzie. To kluczowy krok, ponieważ bez niego Twoja działalność będzie nielegalna. Pamiętaj też, że zmiana sposobu użytkowania na cele komercyjne wiąże się z konsekwencjami podatkowymi stawka podatku od nieruchomości dla budynków związanych z prowadzeniem działalności gospodarczej jest zazwyczaj znacznie wyższa niż dla budynków gospodarczych.

Budynek gospodarczy, garaż, wiata: kluczowe różnice
Funkcja decyduje o wszystkim: czym budynek gospodarczy różni się od garażu?
Często te dwa pojęcia są mylone, a przecież różnice są fundamentalne i wynikają z ich przeznaczenia. Garaż, zgodnie z przepisami, jest przeznaczony wyłącznie do przechowywania i bieżącej, niezawodowej obsługi samochodów osobowych. Jego głównym celem jest ochrona pojazdu. Budynek gospodarczy natomiast ma szersze spektrum zastosowań. Może służyć do przechowywania narzędzi, sprzętu ogrodowego, rowerów, drewna opałowego, a także jako miejsce do drobnych prac warsztatowych. Chociaż w budynku gospodarczym możesz doraźnie przechowywać samochód, to jego definicja i główne przeznaczenie są inne niż garażu. Ta różnica w funkcji ma bezpośrednie przełożenie na formalności i wymogi techniczne.
Wiata to nie budynek dlaczego rozróżnienie tych pojęć jest tak ważne dla inwestora?
Rozróżnienie między wiatą a budynkiem jest absolutnie kluczowe dla każdego inwestora. Dlaczego? Ponieważ wiata nie jest uznawana za budynek w świetle Prawa budowlanego. Główna różnica polega na tym, że wiata zazwyczaj nie posiada wszystkich przegród budowlanych (ścian) lub nie jest trwale związana z gruntem poprzez fundamenty. Jest to lżejsza konstrukcja, często otwarta z jednej lub kilku stron. To rozróżnienie ma kolosalne znaczenie dla formalności budowlanych budowa wiaty jest zazwyczaj znacznie prostsza i często nie wymaga nawet zgłoszenia, jeśli spełnia określone kryteria (np. powierzchnia do 50 m², związana z budynkiem mieszkalnym). Pomylenie tych pojęć może skutkować niepotrzebnymi formalnościami lub, co gorsza, samowolą budowlaną, jeśli uznamy budynek za wiatę i nie dopełnimy wymaganych procedur.
Który obiekt wybrać? Analiza formalności i funkcjonalności
Wybór odpowiedniego obiektu zależy od Twoich potrzeb i możliwości. Aby ułatwić Ci decyzję, przygotowałam krótkie porównanie, które pomoże Ci zrozumieć kluczowe różnice w formalnościach i funkcjonalności.
| Obiekt | Formalności | Funkcjonalność |
|---|---|---|
| Budynek gospodarczy | Zgłoszenie (do 35 m², parterowy, 2 na 500 m²) lub pozwolenie (powyżej 35 m², piętrowy) | Przechowywanie narzędzi, sprzętu, płodów rolnych; niezawodowa praca warsztatowa; funkcja pomocnicza |
| Garaż | Zgłoszenie (do 35 m², parterowy, 2 na 500 m²) lub pozwolenie (powyżej 35 m², piętrowy) | Przechowywanie i bieżąca obsługa samochodów osobowych |
| Wiata | Zazwyczaj zgłoszenie (np. do 50 m² w określonych warunkach) lub brak formalności (mniejsze konstrukcje) | Zadaszenie, ochrona przed deszczem/słońcem dla pojazdów, drewna, sprzętu; brak pełnych ścian |
Adaptacja budynku gospodarczego na cele mieszkalne: jak to zrobić legalnie?
Formalna strona przekształcenia jakie dokumenty i wnioski są niezbędne?
Marzy Ci się przekształcenie budynku gospodarczego w uroczy domek letniskowy lub nawet stałe miejsce zamieszkania? To możliwe, ale wymaga legalnego przeprowadzenia procesu zmiany sposobu użytkowania. Nie jest to prosta sprawa i wiąże się z szeregiem formalności. Niezbędne jest złożenie wniosku o zmianę sposobu użytkowania w odpowiednim urzędzie, czyli w starostwie powiatowym lub urzędzie miasta (w przypadku miast na prawach powiatu). Do wniosku będziesz musiał dołączyć m.in. opis techniczny budynku, inwentaryzację, a także projekt adaptacji, który będzie uwzględniał nowe przeznaczenie i spełnienie wszystkich wymogów dla budynków mieszkalnych.
Jakie wymagania techniczne musi spełnić adaptowany budynek?
Adaptacja budynku gospodarczego na cele mieszkalne to nie tylko kwestia papierkowa, ale przede wszystkim techniczna. Budynek, który ma służyć jako mieszkanie, musi spełniać szereg rygorystycznych wymagań, które są zupełnie inne niż dla obiektu gospodarczego. Z mojego doświadczenia wiem, że to często generuje największe koszty i wyzwania. Oto kluczowe aspekty:
- Ocieplenie: Budynek musi spełniać aktualne normy efektywności energetycznej, co zazwyczaj oznacza konieczność docieplenia ścian, dachu i podłóg.
- Odpowiednie instalacje: Niezbędne są sprawne instalacje elektryczne, wodno-kanalizacyjne, grzewcze oraz wentylacyjne, zgodne z obowiązującymi normami.
- Dostęp do światła dziennego: Pomieszczenia mieszkalne muszą mieć odpowiedni dostęp do światła dziennego, co może wymagać powiększenia okien lub dodania nowych.
- Wysokość pomieszczeń: Minimalna wysokość pomieszczeń mieszkalnych jest ściśle określona przepisami.
- Bezpieczeństwo pożarowe: Budynek musi spełniać wymogi bezpieczeństwa pożarowego dla budynków mieszkalnych.
- Warunki higieniczno-sanitarne: Muszą być zapewnione odpowiednie warunki sanitarne, w tym dostęp do łazienki i kuchni.
Przeczytaj również: Ile budynków gospodarczych na działce? Limity, MPZP i 2x35m²
Najczęstsze pułapki i błędy przy zmianie sposobu użytkowania jak ich uniknąć?
Proces zmiany sposobu użytkowania budynku gospodarczego na mieszkalny jest złożony i niestety, łatwo wpaść w pułapki. Najczęstszym błędem, z jakim się spotykam, jest samowolna zmiana sposobu użytkowania, czyli po prostu zamieszkanie w budynku gospodarczym bez dopełnienia żadnych formalności. Konsekwencje takiej decyzji mogą być bardzo poważne: kary finansowe, nakaz przywrócenia poprzedniego stanu, a nawet problemy z ubezpieczeniem czy sprzedażą nieruchomości. Aby uniknąć tych problemów, zawsze działaj zgodnie z prawem. Skonsultuj się z architektem, który oceni możliwości adaptacji i pomoże w przygotowaniu niezbędnej dokumentacji. Pamiętaj, że legalne przeprowadzenie procesu jest kluczowe nie tylko dla Twojego spokoju, ale także dla wartości i bezpieczeństwa Twojej nieruchomości.




